实验室通风柜排风及补风系统运转及控制要求
2018-03-02
一、运转及节制目的
为保证职员平安康健,试验室的通风装备和体系必需做到:
1. 有用实时地从污染源排放有毒气体和颗粒。
2. 为避免试验过程当中有毒气体和颗粒和化学品寄存过程当中挥发的无害气体
向其余空间外溢,试验室需包管一定的负压。
3. 试验室内气流构造优越,送回风气流速率及紊流度均能节制在较小的规模
内,免得室内气体的扰动惹起排风柜内气体外溢。
4. 试验室内换气率能有用节制,室内氛围应充足置换,包管其新鲜度。
5. 通风体系充足斟酌试验室内设置多台排风柜环境下岑岭时同时应用、夜间值
班工况下最小排风等各类环境,体系通风容量要既到达最大通风请求,又要充足斟酌其调理灵活性,实现体系经济运转。应当斟酌装备的同时应用系数,以使体系装备设置装备摆设更趋于正当,最大限度的节能。
6. 有用节制试验室内的温湿度,室内乐音应小于58 dbA,为事情职员供给温馨
的环境。
二、试验室通风柜排风及补风体系运转及节制计划
1. 通风柜计划
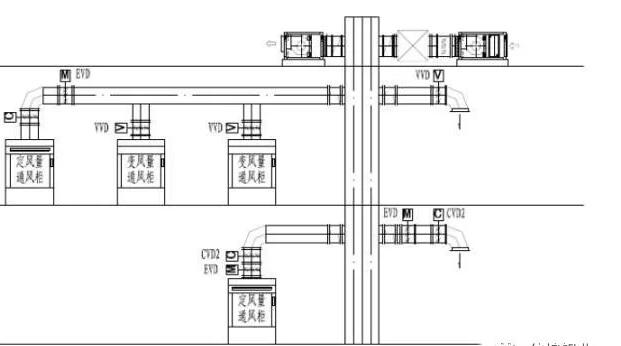
1~12层的通俗试验室采纳旁通型定风量通风柜(有特殊请求的除外),13~14层的理化试验室采纳旁通型定风量通风柜和变风量通风柜,详细设置装备摆设详见计划图纸。通风柜应满意国度相干尺度及尺度请求,且均应设置装备摆设传感器及节制器(依据监测的面风速调理对应的变风量阀开度)。
2. 1~12层通俗试验室通风柜体系节制
日常平凡封闭通风柜排风及补风体系上的电动密闭阀(EVD)。当应用通风柜时,经由过程通风柜上的手动开关联锁开启排风及补风体系电动密闭阀,由定风量阀节制排风量恒定;当通风柜面窗不开启时,排风从旁通口进入不该有噪声。
3. 13~14层通俗试验室通风柜体系节制
(1)单个通风柜试验室:采纳旁通型通风柜,送、排风体系中采纳双稳态定风量调理方法来实现通风柜事情状态和余暇状态下两个分歧风量值间的切换。当试验室有人且通风柜不该历时,密闭阀EVD开启,双稳态定风量阀CVD2处于高级状态,满意室内换气次数不小于6次/h的请求;当试验室有人应用通风柜时,密闭阀EVD开启状态稳定,双稳态定风量阀CVD2处于高级状态,满意通风柜的排风量请求;当室内无人时,手动封闭密闭阀EVD,节约能源。
(2)多个通风柜试验室:采纳旁通型通风柜和变风量通风柜,送、排风体系中采纳双稳态定风量调理方法和变风量调理方法来实现通风柜事情状态和余暇状态上风量值间的切换。当试验室有人且通风柜不该历时,密闭阀EVD开启,双稳态定风量阀CVD2处于高级状态,满意室内换气次数不小于6次/h的请求。当试验室有人应用通风柜时,密闭阀EVD开启状态稳定,如应用旁通型通风柜,则双稳态定风量阀CVD2处于高级状态,满意通风柜的排风量请求;如应用变风量通风柜,则其对应的变风量阀VVD依据面风速调理排风量及补风量,双稳态定风量阀CVD2处于高级状态稳定。当室内无人时,手动封闭密闭阀EVD,节约能源。
4. 风机体系节制
任何一个通风柜开启则联锁开启对应的屋顶送排风机,无通风柜开启或应历时则风机延时结束运转。风机采纳管道静压变频节制,节制器连续监测管道内的静压,经由过程调理风机转速来恒定静压,包管多台通风柜开启时的风压。
5. 其余
在体系运转时排风体系先于送风体系启动,封闭时则与之相同,体系运转中,当室内气流遭到滋扰。室内压差与体系设定压差值产生偏差时,送、排风体系中的变风量调理阀会敏捷启动,自行调理到适合的开启度,再次均衡体系压力,对试验室内压差结束准确节制;设在排风柜上的变风量阀能使排风柜面板前的面风速在面板开启到随意率性状态时保持稳定在平安值规模内。
三、通风体系采纳的节制单位
1.应用于送、排风风量节制的定风量调理阀(CVD)。
2.应用于送、排风风量节制的双稳态定风量调理阀(CVD2)。
3.应用于送、排风风量节制的变风量调理阀(VVD)。
4.应用于节制开启或封闭房间送、排风体系的密闭阀(EVD)。
四、通风体系节制单位应满意的请求
1. 定风量阀(CVD,CVD2)的技巧请求:
a. 定风量调理阀应为压力有关型、机械式主动调理装配,阀体为镀锌钢板
等高品质资料制成,颠末定风量调理阀的风量可严厉按照刻度盘标定的风量值送、排风,而不受管道中静压及风量变更的影响。
b. 定风量调理阀阀体布局为单阀板撙节情势,并依据阀前静压的变更主动
调剂阀位的开度,从而包管送风量的恒定。
c. 定风量调理阀应采纳内拔出或法兰式衔接,并可附带电动履行器,以满
足双稳态定风量调理或远程节制的请求。
d. 定风量调理阀可在管道静压压差50至1000Pa规模内失常事情,装配时
不受地位限定,程度或垂直装配都可。装配时对现场前提请求较低,纵然进口或进口前提晦气也能失常事情。
e. 定风量调理阀流量调理精度在分歧静压前提下应小于设定风量的8%。
f. 定风量调理阀内部应有风量刻度盘和指针表现流量刻度,并可在刻度
盘风量规模内随意率性设定风量,并能包管风量刻度与现实风量偏差<±4%
2. 变风量阀(VVD)的技巧请求:
a. 变风量调理阀阀体应采纳热镀锌钢材等高品质资料,轴承应满意抗腐化、
抗磨损、抗老化及气密性的请求;镀锌钢板叶片外圈应装配密封条,以包管风阀的气密性,当进口压力为750Pa时,风阀的漏风量不超过最大额外进风量的1%。
b. 内置压差传感器和压差节制器,可以或许准确设定所需压差值,当环境压差与设定压差值有偏差时阀门可以或许敏捷做出反响,而且在3秒内实现风量调理,到达既定的体系压差。
c. 变风量调理阀事情温度规模在10至50°C,管道压力差规模20至1500Pa,装配时不受地位限定,程度或垂直装配都可。
d. 所供产物在出厂前都必需结束过严厉的气流测试和参数标定,产物的节制精度应<±5%。
e. 应用在排风柜上的变风量阀应结束防腐喷涂,阀门节制相应光阴〈1秒,均衡光阴〈3秒,能将排风柜面风速节制在设定值的±20%的规模内。
f. 排风柜上的变风量阀具备对通风柜运转状态的监测功效,在通风体系产生非常的时刻,会立刻报警,并可依据设置在通风柜旁的紧迫按钮状态,立刻将某个通风柜排风量开到最大以敷衍紧迫状态。
g. 变风量阀应为压力有关型的风量调理节制,包管体系中多间试验室或多个通风柜同时运转时,各自自力调理,互不滋扰;
3. 密闭阀(EVD)的技巧请求:
a. 板式碟阀,阀板叶片外圈应装配密封条,阀门封闭时的漏风量满意国度相干尺度及尺度的请求。
b. 阀体和附件均采纳优良镀锌钢板制造,镀锌钢板的厚度不小于0.6mm,应具备优越的机械加工机能,应避免在整机的折弯、滚压成型过程当中损坏外面镀锌层。接缝采纳焊接方法应采纳防腐步伐;
c. 阀体的滚圆度应尽量高,以包管风阀的气密性;
d. 轴承应满意抗腐化、抗磨损、抗老化及气密性的请求;
e. 最大承压才能不低于1500Pa;
f. 失常运转温度为10-50℃;
g. 阀体采纳喷涂,阀片用不锈钢资料,已满意腐化性环境。
h. 选配泰西著名、技巧成熟的履行机构,包管马达关断次数不少于60000次,免保护。
上一个: 什么是全钢实验台
下一个: 实验室通风柜安装在实验室哪里




